Description
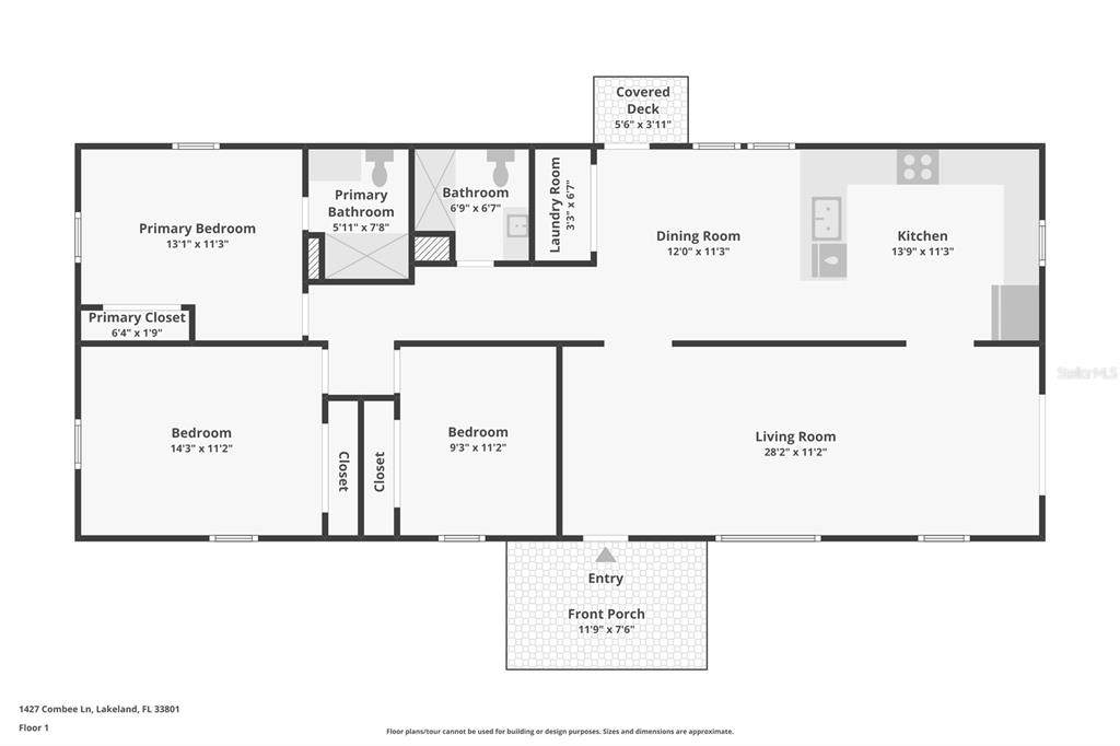
One or more photo(s) has been virtually staged. Extensively remodeled with engineered plans, permits, and inspections! Renovations include: New Windows. New HVAC and Ducting. New Sheathing, House Wrap, Wall Insulation, Vinyl Siding, Front & Back stairs/porches and Rear Fence. New Power Pole, Eclectic Panel and Wiring. New Plumbing Lines, Hot Water Heater, Septic, Drain Field and well Pressure Tank. New Sub Flooring, Luxury Vinyl Plank and Baseboards. New Drywall, Doors, Door Hardware and Trim. Two new bathrooms with premium fixtures. AND New Kitchen Cabinets, Counter tops and Appliances! This home feels better than new! It features stylish designer finishes, a modern spacious floor plan in a secluded location surrounded by single families homes on a dead end road with NO HOA. The home has a large 11'X28' living room that will hold large or multiple furniture groupings and that can host large groups for the holidays or entertaining. The kitchen has an open concept with the dining room. It's U Shaped design will allow three to work in the kitchen at the same time. The kitchen features white cabinetry with stunning wood countertops and stainless appliances including a slide in range. The primary bedroom is an En Suite with walk in shower. Bedroom #2 is similar in size to the Primary Bedroom. Bedroom #3 is standard size but would be great as kid's bedroom, guest room, or office. Located between Downtown Lakeland and Auburndale it is close to Shopping, Restaurants and Medical Services. Public water is present at the address if you would like to connect to it. The I-4 and Polk Parkway are just a few minutes away. This is a must See! Plans, permits, inspection paper work and Construction Photos are available for your review.10 day inspection max. Minimum 1% Escrow on Finance Offers and 5% Escrow on Cash offers. All dimensions estimated. Buyer/Buyer's agent to verify.
-
3BEDS
-
0.25ACRES
-
2BATHS
-
01/2 BATHS
-
1,288SQFT
-
$186$/SQFT
School Information
Description
One or more photo(s) has been virtually staged. Extensively remodeled with engineered plans, permits, and inspections! Renovations include: New Windows. New HVAC and Ducting. New Sheathing, House Wrap, Wall Insulation, Vinyl Siding, Front & Back stairs/porches and Rear Fence. New Power Pole, Eclectic Panel and Wiring. New Plumbing Lines, Hot Water Heater, Septic, Drain Field and well Pressure Tank. New Sub Flooring, Luxury Vinyl Plank and Baseboards. New Drywall, Doors, Door Hardware and Trim. Two new bathrooms with premium fixtures. AND New Kitchen Cabinets, Counter tops and Appliances! This home feels better than new! It features stylish designer finishes, a modern spacious floor plan in a secluded location surrounded by single families homes on a dead end road with NO HOA. The home has a large 11'X28' living room that will hold large or multiple furniture groupings and that can host large groups for the holidays or entertaining. The kitchen has an open concept with the dining room. It's U Shaped design will allow three to work in the kitchen at the same time. The kitchen features white cabinetry with stunning wood countertops and stainless appliances including a slide in range. The primary bedroom is an En Suite with walk in shower. Bedroom #2 is similar in size to the Primary Bedroom. Bedroom #3 is standard size but would be great as kid's bedroom, guest room, or office. Located between Downtown Lakeland and Auburndale it is close to Shopping, Restaurants and Medical Services. Public water is present at the address if you would like to connect to it. The I-4 and Polk Parkway are just a few minutes away. This is a must See! Plans, permits, inspection paper work and Construction Photos are available for your review.10 day inspection max. Minimum 1% Escrow on Finance Offers and 5% Escrow on Cash offers. All dimensions estimated. Buyer/Buyer's agent to verify.
Related Properties
© 2026 My Florida Regional MLS DBA Stellar MLS. All rights reserved. All listings displayed pursuant to IDX. All listing information is deemed reliable but not guaranteed and should be independently verified through personal inspection by appropriate professionals. Listings displayed on this website may be subject to prior sale or removal from sale; availability of any listing should always be independently verified. Listing information is provided for consumers personal, non-commercial use, solely to identify potential properties for potential purchase; all other use is strictly prohibited and may violate relevant federal and state law. Data last updated 2026-03-06T23:45:28.32.
