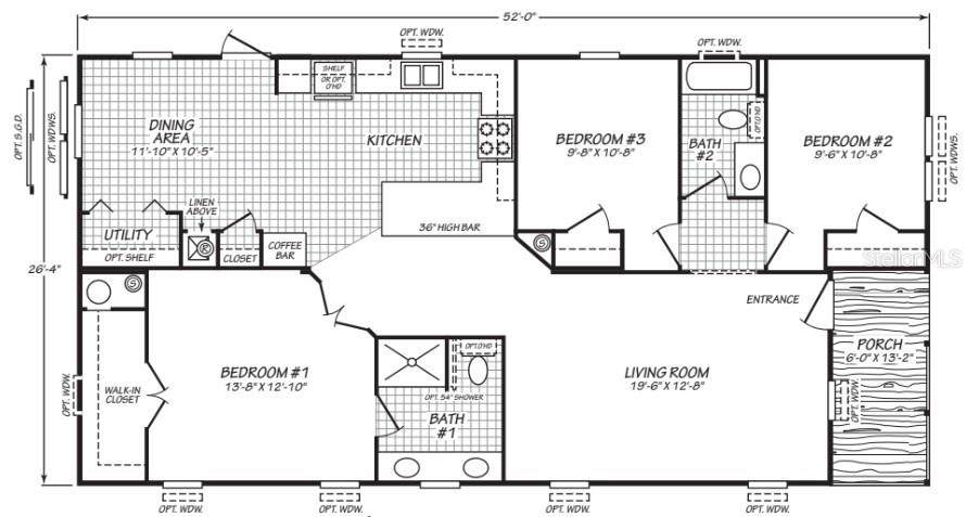
Description
One or more photo(s) has been virtually staged. Pre-Construction. To be built. Brand-new construction on private land under $280,000 — something almost impossible to find in today’s market. PROVIDING $5,000 BUYER CONCESSIONS. Currently under completion on-site, this brand-new 3-bedroom, 2-bath Cavco Economy home delivers what most buyers are searching for and rarely find: new construction, no renovations, and no compromises. Set on a 0.26-acre lot and featuring a welcoming covered front porch, the home blends modern efficiency with timeless curb appeal. Built by Cavco Industries, the parent company of Fleetwood Homes, this residence is constructed in a controlled factory environment for consistent quality, durability, and compliance with federal HUD standards. The property will include a new well, new septic, and brand-new systems throughout, all backed by a manufacturer’s limited warranty. No deferred maintenance. No surprises. Just a fresh start built from the ground up. Photos may include renderings or similar completed homes. Construction is in progress; completion forthcoming.
-
3BEDS
-
0.26ACRES
-
2BATHS
-
01/2 BATHS
-
1,398SQFT
-
$186$/SQFT
School Ratings & Info
Description
One or more photo(s) has been virtually staged. Pre-Construction. To be built. Brand-new construction on private land under $280,000 — something almost impossible to find in today’s market. PROVIDING $5,000 BUYER CONCESSIONS. Currently under completion on-site, this brand-new 3-bedroom, 2-bath Cavco Economy home delivers what most buyers are searching for and rarely find: new construction, no renovations, and no compromises. Set on a 0.26-acre lot and featuring a welcoming covered front porch, the home blends modern efficiency with timeless curb appeal. Built by Cavco Industries, the parent company of Fleetwood Homes, this residence is constructed in a controlled factory environment for consistent quality, durability, and compliance with federal HUD standards. The property will include a new well, new septic, and brand-new systems throughout, all backed by a manufacturer’s limited warranty. No deferred maintenance. No surprises. Just a fresh start built from the ground up. Photos may include renderings or similar completed homes. Construction is in progress; completion forthcoming.
© 2026 My Florida Regional MLS DBA Stellar MLS. All rights reserved. All listings displayed pursuant to IDX. All listing information is deemed reliable but not guaranteed and should be independently verified through personal inspection by appropriate professionals. Listings displayed on this website may be subject to prior sale or removal from sale; availability of any listing should always be independently verified. Listing information is provided for consumers personal, non-commercial use, solely to identify potential properties for potential purchase; all other use is strictly prohibited and may violate relevant federal and state law. Data last updated 2026-03-08T18:44:06.69.
